
GKG礦用一般型高壓開關柜
產品名稱:GKG礦用一般型高壓開關柜
所屬分類:礦用柜系列
產品簡介:GKG-12型(原型號:KGS1-12)礦用一般型高壓開關柜,是3.6-12千伏三相交流50Hz單母線及單母線分段系統的成套配電裝置,主要用于各類礦山、地鐵、風電、住宅、工礦企事業配電以及電業系統的用戶變電所的受電、送電及大型高壓電動機啟動等,進行控制、保護、監測之用。
概述
GKG-12型(原型號:KGS1-12)礦用一般型高壓開關柜,是3.6-12千伏三相交流50Hz單母線及單母線分段系統的成套配電裝置,主要用于各類礦山、地鐵、風電、住宅、工礦企事業配電以及電業系統的用戶變電所的受電、送電及大型高壓電動機啟動等,進行控制、保護、監測之用。本開關設備滿足GB/T12173《礦用一般型電氣設備》、GB3906等標準要求,具有防止帶負荷推拉斷路器手車防止誤分合斷路器、防止接地開關處于閉合位置時關合斷路器、防止誤入帶電隔室、防止在帶電時誤合接地開關的聯鎖功能、防止在斷路器處于工作位置時二次插頭脫落等聯鎖功能。本開關柜在結構上吸收了國內外各種柜型的優點,克服老產品存在的缺陷和不足,推出一種礦用一般型高壓開關柜以滿足煤礦、金屬與非金屬礦山井下及地面變電所使用的供配電設備。
型號及基本參數

基本參數
●額定電壓:6kV10kV
●封頂電壓:12kV
●額定頻率:50Hz
●額定電流:50A、75A、100A、150A、200A、250A、300A、400A、500A、630A、800A、 1000A、1250A、1600A
●額定短路關合電流:80kA
●額定短路開斷電流:16kA、20kA、25kA、31.5kA
●額定短時耐受電流:16kA、20kA、25kA、31.5kA
●額定峰值耐受電流:40kA、50kA、63kA、80kA
●操作回路額定電壓:=110V、~127V、=220V
●外殼防護等級:IP54
額定絕緣水平表

使用環境條件
●環境溫度:環境溫度不高于+40℃,不低于-25℃;
●海拔不超過 2000m;大于 2000m~5000m 選用高海拔柜型;
●周圍空氣相對濕度不大于 95%(在25℃時);
●在無搖動和沖擊振動的地方;
●在無破壞絕緣及腐蝕金屬的氣體和蒸汽的環境。
產品結構與特點
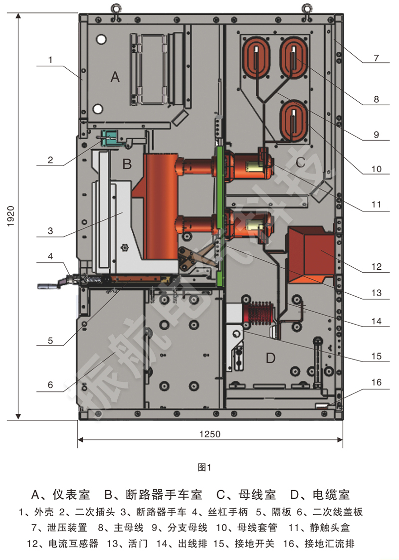
●標準斷路器柜外形及結構布置圖見圖
●外形及安裝尺寸見圖2
●本開關柜與其它礦用開關柜相比有如下優點:
a、手車從工作位置移至試驗位置,手車室門不需要打開,保證了長期處于冷備投狀態的開關柜的防護等級;
b、手車處于試驗位置時,不需打開柜門,就可操作接地開關的分合;
c、開關柜各室均有獨立的泄壓通道;
d、開關柜標準柜寬 80mm;特定場合可訂制 650mm;
d、本開關柜可用于高海拔地區(外形尺寸變大),具有高原型開關柜檢驗資質。
●開關設備執行標準:GB/T12173及 GB3906,開關柜結構見圖 1;開關柜由柜體和可抽出部件(簡稱手車)兩部分組成。開關柜外殼防護等級為 1P54,開關柜可配用真空斷路器、PT 及計量手車。本柜具有架空進出線、電纜進出線及聯絡等方案,可根據用途將一次方案進行排列組合,完成配電需求的各種功能。
●開關設備的外殼和隔板是由覆鋁鋅鋼板經 CNC 設備加工制成,使整個柜體不僅具有精度高、還有很強的抗腐蝕與抗氧化作用。由于采用多重折邊工藝使柜體整體機械強度變高,零部件通用性強、占地面積少、便于安裝運行。開關柜殼體用金屬隔板分隔成手車室、母線室、電纜室、儀表室開關柜柜門采用噴塑工藝,使其表面抗沖擊、耐腐蝕,并保證了外觀的質量。
●電流等級提升到 1600A 滿足更大負荷的要求:隨著礦山負荷的加大該產品的額定電流從 630A 發展到 1600A,開斷電流從 12.5KA 發展到 31.5KA,以此滿足負荷日益增長的要求。
●真空斷路器手車:機械聯鎖安全可靠靈活。根據用途手車分為斷路器手車、電壓互感器手車、計量手車等,相同規格手車能實現互換。手車在柜內具有試驗和工作位置,每個位置均設有定位裝置,以保證聯鎖可靠。使用時必須按聯鎖順序進行操作。各種手車均采用絲杠搖進、退出,操作輕便、靈活。本開關柜根據需要可作為智能化開關柜使用,通過地面調度室對手車的進岀及接地開關的分合進行自動控制。當手車移出柜體時,用專用轉運車,進行各種檢查維護。

●開關柜柜體
開關設備由斷路器手車室、母線室、電纜室、儀表室組成。
●手車室
手車采用絲杠搖進、退出,使手車在工作位置、試驗位置轉換。金屬活門安裝在手車室后壁上,手車從試驗位置移動到工作位置過程中,活門自動打開;退出手車,活門板自動閉合,將靜觸頭遮擋,保證操作人員不觸及帶電體。手車只有在開關柜柜門關閉情況下方可操作,通過觀察窗可以看到手車在柜內所處的位置。手車處于工作位置時,可通過門上的應急手動分閘按鈕,對斷路器進行緊急分閘操作。
●母線室
母線室用于主母線安裝,左右側壁均有開孔,用于安裝母線絕緣套管,將設備與設備之間的母線室隔開,避免事故發生時波及相鄰開關柜
●電纜室
電纜室內可安裝電流互感器、接地開關、避雷器等相關元器件及電纜。
●儀表室
儀表室用于按裝各類繼電保護元件、儀表以及特別要求的二次設備,在儀表室頂部設有二次小母線。
●泄壓通道
在手車室、母線室、電纜室的上方均設有獨立的泄壓通道。當各隔室發生內部故障電弧時,柜體頂部壓力釋放金屬板自動開啟,釋放壓力、排出氣體,以保證人員和設備的安全
●二次插頭與手車的聯鎖
開關柜與手車的電氣聯接是通過二次插頭來實現的。二次靜觸頭座裝設在開關柜斷路器室的右上方,手車只有在試驗位置時,才能插拔二次插頭。手車處于工作位置時,二次插頭被鎖定,不能插撥。
●防止誤操作聯鎖裝置
開關柜具有可靠的防誤聯鎖裝置,為操作與維護人員提供可靠的安全保護,滿足“五防”要求。
a、防止帶負荷推拉斷路器手車:斷路器手車只有在試驗或工作位置時,才能進行合分閘操作。斷路器合閘之后,手車將被鎖定無法移動;
b、防止誤分、誤合斷路器、負荷開關、接觸器:只有手車在試驗或工作位置時,才可以合、分閘操作
c、線防止帶處電合手接地合開關:接地時開關僅在車手車不處于從試驗位故置及位柜外置時才能進合閘操作。當接地開關處于合閘狀態時,手車不能從試驗位置推至工作位置;
d、防止接地開關處于合閘狀態時送電:接地刀必須處于分閘位置時,斷路器手車才能推入工作位置進行合閘操作;
e、防止誤入帶電間隔:斷路器手車必須處于試驗位置,并且接地開關處于合閘狀態時,才能打開后門(不帶接地開關時應先打開后門的電磁鎖);手車從工作位置移至試驗位置后,活門將靜觸頭遮擋。隨柜物品
●開關柜的安裝使用說明書;
●裝箱單;
●主要元件說明書;
●信息反饋單;
●開關柜二次原理圖、接線圖;
●開關柜出廠檢驗報告;
●配件與專用工具;
●合格證。
訂貨
訂貨資料
●系統圖、排列圖及平面布置圖,開關柜內所裝配電器元件的規格、數量及品牌;
●用戶可根據實際需要,按線路選型方案選配,負載名稱及額定電流;
●各饋出單元的用途牌字樣;
●地腳槽鋼及電纜頭,制造廠不供應,要求提供主母排時應在合同中注明;
●開關柜外殼顏色應注明,未注明時按常規供貨;
●有特別方案和要求時,可按用戶要求進行設計和供應;
●訂貨前用戶需要技術咨詢可與本公司技術部聯系(0510-83272855)。



相關產品